Warenkorb leer

Pfarrkirche Sankt Paulin

- eine der schönsten und elegantesten Kirchen Triers -

(Abb.1)

Die Geschichte der Kirche St. Paulin reicht bis in die römische und frühchristliche Zeit zurück. Sie steht heute, genau wie ihre Vorgängerbauten am Rande des nördlichen römischen Gräberfeldes vor den Mauern unserer antiken Kaiserstadt. Sie ist nunmehr mindestens der dritte Kirchenbau der an exakt dieser Stelle errichtet wurde.

Das Gebiet von Sankt Paulin und Sankt Maximin liegt auf dem ehemaligen Marsfeld, welches sich auf einer Fläche aus der Flucht Paulin-Maximin bis hin zur Mosel erstreckte. Auf diesem Feld soll Ende des 3. Jahrhunderts die Thebaische Legion zusammen mit vielen Trierer Christen für Ihren Glauben brutal niedergemetzelt worden sein, so brutal, dass deren Blut die Mosel bis nach Neumagen rötlich färbte.

Bei späteren Nachforschungen und Ausgrabungen fand man im Boden des Marsfeldes über 320 frühchristliche Marmorplatten mit eingemeißelten Grabinschriften, die das Forschungsergebnis mitunter bestätigen.

(Abb.2)

Vorgeschichte

Paulinus, 6. Trierer Bischof

Ihren Namen erhielt die Kirche vom heiligen Paulinus, der in der Zeit von 347 bis 358 der 6. Bischof von Trier war. Als Paulinus in Trier als Nachfolger von Bischof Maximinus sein Amt antrat, gab es innerhalb der frühchristlichen Kirche bereits verschiedene, sich konkurrierende Auslegungen des christlichen Glaubens, nämlich die des Arianismus und die der Anhängern des Athanasius.

(Abb.3) Paulinus Statur an der Paulinskirche

Ganz einfach betrachtet war der Casus Knacktus der Fragen aller Fragen: Ist Gottes Sohn Jesus Christus gottgleich oder lediglich gottähnlich.

Auf der einen Seite standen also die Anhänger des (abgesetzten Bischofs) Athanasius. Sie sahen Gott als Wesenseinheit und Wesensgleichheit in drei Gestalten, nämlich in Form von Vater, dem Sohn und dem Heiligen Geist. Alle drei vereint ergeben den einen allesumfassenden Gott. (Dreifaltigkeit oder Trinität)

Für die Arianer (Arianismus) hingegen war die Wesensgleichheit von Gott, Sohn und dem Heiligem Geist eine Irrlehre, da sie eindeutig dem Monotheismus (nur einen einzigen Gott zu huldigen) wiedersprach. Der Sohn Gottes, wie auch der Heilige Geist genieße gegenüber Gottvater nur eine untergeordnete – keine gleichkommende Stellung. Die zum Dogma erhobene Dreifaltigkeit war aus ihrer Sicht pure Häresie (eine Lehre, die im Widerspruch zu kirchlich-religiösen Glaubensgrundsätzen steht).

Während des Streites zwischen dem Arianismus und den Anhängern des Athanasius stellte sich Bischof Paulinus auf die Seite der Athanasius-Anhänger. Dem Trierer Bischof, der selbst noch Schüler von Ausonius war, war Athanasius durchaus bekannt. Sein Vorgänger Ex-Bischof Maximinus hatte dem abgesetzten und verbannten Bischof Athanasius schon einmal in Trier Schutz und Asyl gewährt.

(Abb.4) Bischof Maximinus gewährt Athanasius in Trier Schutz und Asyl

Im Jahr 353 schritt Kaiser Constantius II ein und rief - um die Glaubensstreitigkeiten nachhaltig zu beenden - ein Konzil in Arles aus. Eine Großzahl der Bischöfe ist wohl von einer Anhörung beider Parteien und einer abschließenden Abstimmung ausgegangen, doch dem machte der Kaiser einen Strich durch die Rechnung. Den versammelten Bischöfen legte er einen bereits fertigen Entwurf vor und stellte sich in ihm klar auf Seite der Arianer. Er verurteilte Athanasius und erließ das Edikt, dass jeder Bischof der das Urteil nicht anerkenne und gleichauf nicht gegen Athanasius stimme, mit ihm in die Verbannung geschickt werde.

Alle anwesenden Bischöfe unterschrieben; mit Ausnahme des Trierer Bischofs Paulinus. Er weigerte sich dem   arianischen Glaubensweg zu folgen und wurde vom Kaiser aus Trier vertrieben und nach Phrygien verbannt (in der heutigen Türkei). Im Jahr 358 starb Bischof Paulinus nach endlosen Wanderungen - noch in der Verbannung und fern seiner Heimat.

(Abb.6)
(Abb.5) Nachstellung des Sarges aus Zedernholz (Rheinisches Landesmuseum Trier)

Als die Trierer Christengemeinde über den Tod ihres geliebten Bischofes erfuhr, unternahmen sie alles in ihrer Macht stehende um seinen Leichnam nach Trier zurück zu holen. Unter reichlichen Anstrengungen und hohem Aufwand konnte seine Leiche geborgen und in einem Sarg aus Zedernholz zurück an die Mosel in seine Bischofsstadt Trier überführt werden. (Und noch heute ruht Bischof Paulinus in seinem Sarg aus Zedernholz, in einer reich geschmückten Ummantelung hinter dem Rokoko-Altar der Krypta der Paulinskirche).

Nachdem Paulinus‘ Leichnam an einer wohl ehrwürdiger Stelle seine vorläufige Ruhe fand, wurde mit dem Bau des ersten Kirchengebäude an jenem geschichtsträchtigen Gräberfeld der Thebaische Legion begonnen.

Erste Vorgängerbauten

In den Jahren der Amtszeit von Bischof Felix (386 – 399) ließ er auf dem Marsfeld ein 127  x 37 Meter großes Kirchengebäude entstehen. In ihrer neu entstandenen Krypta fanden nun auch die Gebeine des heiligen Paulinus und einige Knochen der Märtyrer der Thebaische Legion ihre Ruhe.

Aber der gewaltige Kirchenbau des Bischofs Felix war den kriegerischen Gewalten der Völkerwanderungszeit nicht gewachsen. Als die Franken im Jahr 415 die Stadt stürmten beschädigten sie den Kirchenbau so sehr im Kern, dass er neu aufgebaut werden musste. Erst im Jahr 480 wurden die Bauarbeiten abgeschlossen und sie konnte wieder als Gotteshaus genutzt werden.

(Abb.7) Grabstätte in der Paulin-Krypta

Ihre zweite Zerstörung fand während der Normannenraubzüge im Frühjahr des Jahres 882 statt. Die Wikinger plünderten die Stadt und so gut wie alle umliegenden Klöster; sie ermordete ihre Einwohner und steckten in Brand was sie vorfanden.  Als die mordenden Raubhorden endlich wieder aus Trier abzogen, erblickte man auf weiter Fläche nichts als brennende Trümmerhaufen und Leichen. Kaum ein Bauwerk war ihrer Zerstörungswut entkommen und so viel auch die Paulinskirche samt aller Stiftsgebäude dem zerstörerischem Feuer zum Opfer.

Weder das Stift noch der Bischof hatten die finanziellen Mittel die Kirche neu aufzubauen; folglich verarmte Stift und die restlichen Bauwerke verfielen. Erst unter Erzbischof Egbert fanden zum Ende des 10. Jahrhunderts in Trier wieder aufwendige und groß angelegte Aufbau- und Renovierungsarbeiten statt. In diesem Rahmen wurde auch mit umfassenden Renovierungen des Stiftes und dem Wiederaufbau seiner Kirche begonnen. Nach erfolgreichem Bauabschluss begann die lange Blütezeit des Stiftes Sankt Paulin. Für die Trierer Bischöfe wurde die Paulinus-Basilika bis ins 11. Jahrhundert als eine der ältesten und vornehmsten Basiliken des Domstiftes eine bevorzugte letzte Ruhestätte.

Im Jahre 1093 des 11. Jahrhunderts fing die komplette Kirche Feuer und wurde fast vollständig zerstört.

Der romanische Kirchenbau des 12. Jahrhunderts

Über 50 Jahre lang - bis ins Jahr 1148 hielten die Bauarbeiten für die neue Kirche an. Die nun dreischiffige, im romanischen Stil erbaute Stiftskirche hat nur noch eine Länge von 65m und eine Breite von 37m. Zwei hohe Westtürme über dem Mittelschiff, flankiert von angebauten Treppentürmen bestimmten das Erscheinungsbild der Westfassade.

(Abb.8) Westseite der romanischen Kirche (Zeichnung von 1589)
(Abb.9) Innenansicht (Zeichnung 1792 - Rhein. Landesmuseum)
(Abb.10) Grundriss des romanischen Kirchenbaus (Überarbeitet)

Von dieser Zeit an entwickelt sich St. Paulin für mehr als 500 Jahren zu einem der reichsten und angesehensten Stifte des Bistums - bis zum verhängnisvollen Jahr 1674, als französische Truppen unter Ludwig XIV die Kirche samt den Stiftsgebäuden bis auf die Grundmauern sprengten. (Diese Totalzerstörung ist der Grund, dass heute nur noch wenige Reste aus der Zeit vor 1674 erhalten sind).

Die verarmten Stiftsherren standen auf einem Trümmerfeld. An einen Wiederaufbau war nach all den Zerstörungen und mangelnden finanziellen Möglichkeiten nicht mehr zu denken.

Der barocke Neubau des Franz Georg von Schönborn

Erst als der amtierende Erzbischof und Kurfürst Franz Georg von Schönborn im Jahr 1730 auch Probst von Sankt Paulin wurde, trieb er einen Kirchenneubau voran. Größtenteils von ihm selbst finanziert fand im März 1734 die Grundsteinlegung für ein neues einschiffiges Kirchengebäude im barocken Stil statt – unsere heutige Paulinskirche. Auch dieser Kirchenbau wurde gegenüber seinem Vorgänger wieder verkleinert und steht nur noch auf den Mittelschiff-Fundamenten seines Vorgängerbaus. Die neue Kirche erreichte mit ihren 52m Länge und 15m Breite nur noch weniger als ein Fünftel des ursprünglichen Kirchenbaus aus der römischen Ära.

Die neuen Gewölbe wurden auf eine Höhe von 21m gebaut. Der Dachfirst erreichte eine Höhe von 31,50 m und die Turmspitze errang fast 53 m.

(Abb.11) Grundriss des neuen Kirchenbaus (Bischöfliches Museum)
(Abb.12) Familienwappen Schönborns am Eingangsportal
(Abb.13) Franz Georg von Schönborn (Kurfürst 1729 bis 1756 )

Als Napoleon im Jahr 1802 mit seinen französischen Truppen Trier einnahm, lösten sie St. Paulin als Stift auf und enteigneten die Kirchengebäude. Erst als Napoleon sich im Jahr 1804 selbst ein Bild von der Kirche machen wollte, überwältigte ihn die Schönheit dieses Gotteshauses auf eine Weise, dass er die Rückgabe des Kirchenvermögens an die Mönche verfügte.  Die bisherige Pfarrkirche Walburgis, südlich der Paulinskirche gelegen, wurde abgerissen und dafür Paulin als Pfarrkirche bestimmt.

Im Jahr 1817 schlug im Gotteshaus zwar noch der Blitz ein und das Dach sowie der Turmaufbau brannten aus und mussten komplett erneuert werden, ansonsten blieb das Gotteshaus von weiteren zerstörerischen Blessuren verschont.

Im Jahr 1958 wurde Pfarrkirche St. Paulin zum 1600ten Todestag von Bischof Paulinus in den Rang einer Basilika erhoben.

Wenn wir die heutige Pfarrkirche St. Paulin betrachten, sehen wir eine einschiffige Anlage mit eingezogenem Chor, unter der sich ihre romanische Krypta befinden.

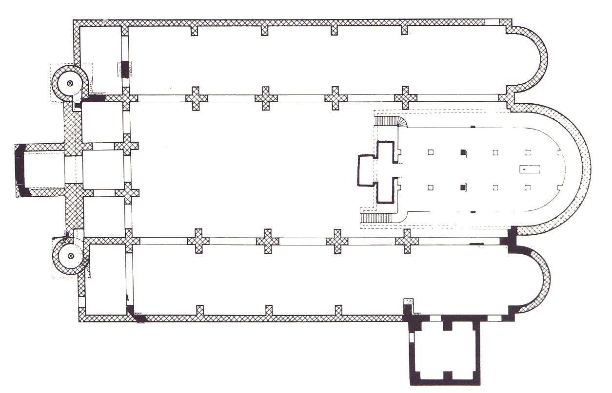
(Abb.14) Grundriss der Krypta (Bischöfl. Museum)

Die Langhauswände, Chorapsis und der Turm stehen auf den Fundamenten des Mittelschiffs des romanischen Vorgängerbaus aus dem 12. Jahrhundert. Schauseite ist eindeutig die Westfassade. Ihr schlanker gelblicher Turm mit barocker Architektur ragt 3-geschössig bis in eine Höhe von 53m empor. Im dritten Turmgeschoss hängen vier, im Jahr 1821-1825 gegossene Glocken. Die geschieferte und kuppelartige Bedachung des Turmes ist jünger und stammt aus den oben erwähnten Reparaturarbeiten aus dem Jahr 1817.

(Abb.15) Eingangsbereich Westportal

Am Westportal empfängt uns eine große Holztür mit einem Rundbogen. Der Rundbogen ist mit einem, im Jahr 1764 kunstvoll geschmiedetem Gitter gefüllt.  Im Giebelfeld halten zwei gekrönte Löwen das Wappenschild des Erbauers Franz Georg von Schönborn.  Betritt man das Innere der Kirche taucht man in ein Meer aus Licht und Farbe ein. Aufwendige Stuckarbeiten, Deckenfresken, Ölbilder und Staturen, Wandmalereien und vergoldete Ornamente wirken in perfekter Harmonie auf den Besucher ein, der erkundend kaum in der Lage ist sein Auge auch nur für einige Sekunden ruhen zu lassen.  (Die Ölbilder der Kirche stammen größtenteils aus dem Anfang des 18. Jahrhunderts / Ludwig Counet 1711-1714).

(Abb.16) Altarbereich

Im großzügigem Halbrund der Apsis vollbrachte der trierische Hofbildhauer Ferdinand Tietz von 1755-61 nach Plan von Balthasar Neumann ein wahres Meisterwerk; am Hochaltar erreicht die Pracht ihren Höhepunkt.  

Auch in der Apsis finden wir im optischen Zentrum wieder das Wappenschild des Erbauers.

(Abb.17) Orgel

An der Westwand, also wieder zum Ausgang gerichtet steht, ein Stockwerk höher die gigantische Orgel aus dem Jahr 1756 (Erneuerungen und Restaurierungen in den Jahren 1858, 1934 und 1991).

Vom antiken Kirchenbau aus dem 4. Jahrhundert ist heute ist nur noch die Gruft mit Schädeln und Knochenreste der Thebaische Legion erhalten. Vom romanischen Bau aus der Zeit 1148 bis 1674 nur noch die Krypta mit dem Sarkophag des heiligen Paulinus. (Der antike Zedernholzsarg liegt heute innerhalb des Sandstein-Sarkophag). Im Jahr 1738 fanden Erneuerungen im Bereich der Gruft des 4. Jahrhundert und der Krypta aus dem romanischem Vorgängerbau statt. U. a. wurden beide Grabkammern durch einen gemeinsamen Eingang zugänglich gemacht. 

(Abb.18)

Das Aussehen der heutigen Krypta stammt aus diesen Umbauarbeiten und einer Restauration von 1975-77.

Das Säulenkreuz auf der Paulinswiese

Die 3m hohe Sandsteinsäule steht auf einem Stufensockel und wird von einem Kalkstein abgeschlossen. Unterhalb wirkt der Abschluss wie ein schmuckloses Kapitell, oberhalb als geschuppter Pinienzapfen. Die Mitte des Kapitells umläuft ein Schriftband mit der Aufschrift (von Latein in Deutsche übersetzt) „Mich hat der fromme Kuno errichtet, Remigius hat mich geweiht“.

Das dem Marktkreuz sehr ähnliche Kreuz wurde vermutlich um das Jahr 1088 errichtet.  Die Deutungen reichen vom Märtyrerkreuz, Gerichts- oder Immunitätszeichen bis hin zu einem weiteren Marktkreuz.

(Abb.19)

Die Legende des Märtyrerkreuzes

Aus der ägyptischen Landschaft Thebais, in der das Christum schon früh Eingang gefunden hatte, traf am 4. Oktober des Jahres 286 die Thebäische Legion unter ihrem Anführer Thyrsus in Trier ein. Sie hatten die römischen Fahnen im Morgenlande mit Ruhm bedeckt und sollte in Trier von harten Kämpfen ausruhen. Trier empfing sie mit großen Ehren, das Volk um jauchzte sie, und Palmatius der Stadt erster Bürgermeister, sagte ihnen, die sich durch ihren Mut ebenso ausgezeichnet hatten, wie durch ihre Christusliebe, ein herzliches Willkommen.

In Trier herrschte damals der kaiserlich Präfekt Rictius Varus. Kaiser Maximian hatte ihn entsandt, das Kreuz, das Eucharius aufgeplatzt hatte, zu vernichten und die Götter wieder auf den Thron zu setzen. Er hätte keinen geeigneteren Mann dafür finden können. Sein Hass gegen die junge Kirche war nicht geringer, als der seines kaiserlichen Auftraggebers.  „In den Staub mit Christus und seiner Kirche“. Mit diesem Losungsworte trat er sein Amt an. Auf des Marsfeld Mitte schlug er seinen Richterstuhl auf. Daneben war die Statur des Kriegsgottes Mars aufgestellt, vor dem die Opferfeuer brannten.

Wutschnaubend sah Rictius Varus den festlichen Empfang, den die Trierer Christen der ersten christlichen Legion, die in die Stadt einzog, bereiteten. „Diese Christenhunde!“ raste er, „für meinen Kaiser und Roms Götter haben sie keine Blumen.“ Sofort gab er Befehl, Thyrsus und seine Soldaten noch am selben Tage vor seinen Richterstuhl zu laden.

Und nun stand die Thebäische Legion, narben- und ehrenreich vor ihren Richter, dem vor Rachsucht todbleichen Rictius Varus. “Streut Weihrauch den Göttern, euren Beschützern in den Kämpfen für Kaiser und Reich! So will ich es der alte römische Brauch“, so herrschte er Thyrsus an. Furchtlos blickte dieser den Präfekten an und sprach voller Bekennermut: „Wir sind treue Soldaten unseres Kaisers, dem wir den Eid der Treue schworen. Aber auch unserem Schöpfer und Erlöser, dem Christengott haben wir Treue gelobt. Nie werden wir diesen Schwur brechen.“ Drohend richtete Rictius Varus sich auf und schrie Thyrsus an: „Opfere oder stirb!“ „Wir opfern nur einem Gott“ antwortete Thyrsus voll Würde, „und dessen Opfer ist nicht blutig. Unzählig male haben wir in furchtbaren Kämpfen dem Tode ins Auge geschaut. Wir fürchten auch den Tod von deiner Hand nicht.“ Und seine Legionäre jauchzten ihm zu und riefen wie aus einem Munde: „Wir sind Christen und wollen lieber sterben als den Göttern opfern.“

In ohnmächtiger Wut versagte dem Präfekten die Sprache. Er winkte den Liktoren, und schon rollte des Thyrsus Haupt in den Sand. Dann fielen auf einen weiteren Wink die heidnischen Söldner über die Legionäre her. Wie eine Mauer standen die mutigen Männer, die nie in Schlacht und Not gezittert hatten. Freiwillig legten sie ihre ruhmbedeckten Waffen nieder und ließen sich ohne Gegenwehr für Christus in den Tod führen. Mit Lanzen und Schwertern fielen die Söldner über die Todgeweihten her und machten sie nieder bis auf den letzten Mann. Heiteren Anblickes, als ginge es zu einem Freudenfest, empfingen die Legionäre den Todesstreich. Das ganze Marsfeld war mit Leichen bedeckt, und sein Boden trank ganze Ströme mit Märtyrerblut. Mit eisernen Haken schleppten die Henker die Leichname zur Mosel und warfen sie in den Fluss, der weithin von dem Blut der christlichen Legionäre gerötet wurde.

Vor der Kirche St. Paulin stellten Trierers Christen ein graues Kreuz als Wahrzeichen der trierischen Märtyrer auf. Liebliche Blumen, getränkt von Christenblut, sprossen aus dem Boden und umgaben es in duftendem Kranze. Millionen haben im Lauf der Jahrhunderte davor gekniet und Ehre den heiligen Blutzeugen erwiesen. Rictius Varus und seine Söldlinge aber sind verflucht und vergessen.

Die vier sonderlichen Steine auf der Wiese nahe der Paulinus-Statur

(Abb.20)

Die Legende der vier Steine Sankt Paulins

Palmatius, der erste Bürgermeister Triers, war von bangen Ahnungen erfüllt. Er kannte den Christenhass und den Blutdurst des kaiserlichen Statthalters und befürchtete, dass ihm das gleiche Schicksal ereilen wird wie den 6000 Mann der Thebäischen Legion, die er vor kurzem noch bei ihrem Einzug in die Stadt Trier so freudig als die ersten christlichen Soldaten der Kaiserstadt willkommen geheißen hatte.

Seine Ahnung hatte ihn nicht getäuscht, kaum hatte der Tag begonnen, traten die Schergen des Kaisers schon bei ihm ein, ihn schleiften ihn vor des Präfekten Richterstuhls.

Palmatius nahm von seiner Tochter rührend Abschied und empfahl sie des Himmels Schutz. Die aber war sehr gefasst, tröstete den Vater und erklärte, mit ihm für Christus sterben zu wollen. Sie ließ sich auch durch die Häscher nicht abhalten, ihn vor den Richter zu begleiten. Rictius Varus erwartete sein neues Opfer schon. Vor ihm stand auf einer Säule das festlich geschmückte Bildnis des Jupiters, der in seiner Hand die Donnerkeile drohend schwang. Vor der Säule war ein Altar aufgerichtet, auf dem ein Götzenpriester Weihrauch zu Ehren Jupiters auf einem golden Herde verbrannte.  Drei Bürgermeister Triers harrten schon ihres Urteilspruches an den Stufen des Richterstuhls. Kaum war Palmatius ihnen beigestellt, als Rictius Varus sie auffordere, ungesäumt den Göttern zu opfern, andernfalls sie sich dem Kaiser widersetzten und des Todes gewärtig sein müssten. Die vier aber weigerten sich einmütig und in gleicher Gesinnung, dem Befehle des Tyrannen zu gehorchen. Für Christus zu sterben, dünkte ihnen ein höherer Preis als des Kaisers Gunst.  So viel der Präfekt auch drohte, sie blieben standhaft bei ihrer Weigerung. Da sprach er das Bluturteil über sie und winkte den Liktoren es sofort zu vollziehen.

Im Umkreis des Thrones blinkten vier weiße Steine, auf die sie die mutigen Bekenner niederzwangen. Vier Nacken wurden entblößt, vier scharfe Beile blinkten im Sonnenstrahl, und vier edle Häupter rollten gleichzeitig in den sich vor Blut rot färbenden Sand. Die Tochter des Palmatius stand zunächst wie erstarrt, als sie das Haupt ihres Vaters fallen sah. Dann aber kam Leben in sie. Festen Schrittes trat sie vor den grausamen Präfekten und sprach in prophetischem Geiste: Deine Götter sind Eitelkeit, Lug und Trug. Du magst ihnen jetzt noch viele Opfer bringen, nicht fern aber ist der Tag, da sie in den Staub sinken werden. Christi Kreuz aber wird auf herrlichen Tempeln über Trier thronen. Du nahmst mir den Vater, hier stehe ich, lass auch mich töten, ich sterbe gerne, gleich ihm für den, für den auch er sein Leben hingab. Dann stürzte hin zum Leichnam ihres Vaters, ihm den letzten Gruß zu entbieten. Sie kniete sich nieder und ihre Hände umfassten das edle Haupt und hoben es hoch, ihm noch einmal ins Angesicht zu schauen, das sie immer so liebevoll angeblickt hatte. Sie rief seinen Namen mit einer so zarten Stimme, sodass allen Anwesenden das Herz vor Jammer brach.

Nur der Tyrann auf dem Thron blieb ungerührt. Er winkte die Schergen herbei und befahl: „in den Kerker mit ihr, den tiefsten – den schlimmsten. Sie sehnt sich nach dem Tod. Wohlan - so soll sie zur Strafe leben in tiefer Kerkernot“.

Die rohen Henkersgehilfen zerrten sie weg von der Leiche ihres Vaters, legten ihr Fesseln an und schleppten sie in den finstersten Kerker. Sie aber folgte hocherhobenen Hauptes ihren Bedrängern. Konnte sie nicht gleich für Christus sterben, so wollte sie wenigstens mit ihm leiden.

Die vier Steine, auf denen die vier Bürgermeister Trierers ihr Leben ausgehaucht hatten, stehen noch immer auf der Wiese vor der Kirche St. Paulin. Wer sich reinen Herzens in den Nächten des Märtyrermonats Oktober der Wiese naht, kann die mutigen Christusstreiter sehen, wie sie in weißen Kleider gehüllt, sich auf den vier Steinen niederlassen, das abgeschlagenen Haupt in der Hand, alle segnen die guten Willens sind.

Quellenangabe:

Abb.1,2,3,7,12,15,16,17,18,19,20:  eigene Fotoaufnahmen

Abb.4:  gemeinfreie* Bilddatei - Wikimedia Commons - https://commons.wikimedia.org/wiki/File:Maximinus_und_Athanasius.jpg?uselang=de

Abb.5:  © Rheinisches Landesmuseum Trier  (eigene Fotoaufnahme vom 19.05.2019)

Abb.6:  © Rheinisches Landesmuseum Trier

Abb.8:  gemeinfreie* Bilddatei - Wikimedia Commons - https://commons.wikimedia.org/wiki/File:Paulin-1589.jpg?uselang=de

Abb.9:  Quelle: Führer zu vor- und frühgeschichtlichen Denkmälern TRIER Teil-1 Text, S. 98 - Römisch-Germanisches Museum Mainz, 1977 Verlage Philipp von Zabern, Mainz  (grafisch überarbeitet)

Abb.10:  © Führer durch St. Paulin, 1976 / eigene grafische Bearbeitung (Scan, Drehung, Nachzeichnung, Schärfe)

Abb.11:  © Führer durch St. Paulin, 1976 / eigene grafische Bearbeitung (Scan, Drehung, Nachzeichnung, Schärfe)

Abb.13:  © Führer durch St. Paulin, 1976 / eigene grafische Bearbeitung (Scan, Drehung, Nachzeichnung, Schärfe)

Abb.14:  eigene grafische Überarbeitung - Quelle: Führer zu vor- und frühgeschichtlichen Denkmälern TRIER Teil-1 Text, S. 88 - Römisch-Germanisches Museum Mainz, 1977 Verlage Philipp von Zabern, Mainz

Weitere Quellen:

Bischöfliches Museum Trier

Rheinisches Landesmuseum Trier

https://de.wikipedia.org/wiki/St._Paulin

* Dieses Bild ist gemeinfrei, denn
• das Werk wurde von seinem Rechteinhaber durch Verzicht auf das Urheberrecht als Public Domain nach amerikanischem Recht freigegeben, oder
• das Werk wurde unter einem solchen Nutzungsrecht zur Verfügung gestellt, dass es von jedermann frei benutzbar und veränderbar ist (§ 31 Abs. 1 UrhG), oder
• die Urheberrechtsschutzdauer ist abgelaufen, weil mindestens 70 Jahre - bei Fotos: 50 Jahre - seit dem Tod des Urhebers vergangen sind, oder
• eine Anwendung des Copyright kommt nicht in Frage, da eine bloße technische Reproduktion einer gemeinfreien Vorlage vorliegt oder das Werk über keine eigene Schöpfungshöhe verfügt

Weitere ausführliche Informationen gibt es in den Wikipedia-Artikeln Gemeinfreiheit und "Bildrechte".

Porta
Theater
K-Therme
B-Therme
R-Brücke
Basilika
Kreuz
Dom
Liebfr.
Gangolf
Maximin
Matthias
I-Säule