Warenkorb leer

Konstantinbasilika

Sie ist das Älteste als Kirche genutztes Gebäude Deutschlands und gilt als der Prototyp des romanischen Kirchenbau. Sie ist der größte römische Einzelraum, der aus der Antike überlebt hat.

(Abb.1)

Basilika, Konstantinbasilika, Palastaula oder Palatium?

Allgemein bekannt ist unser rötlicher Ziegelbau als die Konstantinbasilika. Genau genommen ist es aber eine falsche Bezeichnung da sie ursprünglich als Palastaula, also dem Thronsaal der regierenden Kaiser gebaut wurde.

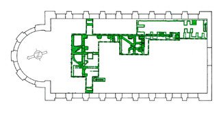
Die Konstantinbasilika wurde auf den Resten noch älterer römischer Bauwerke aus dem 1.   2. und 3. Jahrhundert errichtet. Noch heute können wir Teile der Vorgängerbauten unter dem Boden der Basilika konserviert und öffentlich zugänglich besichtigen (nach Anmeldung).

Farbig eingezeichnet: Teile der römischen Vorgängerbauten ==>

(Abb.2) Grundriss mit römischen Vorgängerbauten

Römische Nutzung

Die Palastaula bildete mit den Kaiserthermen, dem Circus und den umliegenden Vorhöfen und Nebengebäuden das Kernstück des Kaiserlichen Palastbezirks. Sie besteht im Gegensatz zu den übrigen noch erhaltenen römischen Bauwerken in Trier ganz aus Ziegelsteinen.

(Abb.3) Säule Skiziert

Sie ist ein rechteckiges Langhaus mit einer großen rundlicheren Apsis, die fast die ganze nördliche Stirnwand einnimmt. Der gewaltige Ziegelbau ist heut noch 67m lang, 28m breit und etwa 33m hoch und verfügt über eine Mauerstärke von 2,70 m bis 3,40 m.

Das heutige Bild einer freistehenden Halle entspricht allerdings nicht der ursprünglichen Ansicht, denn zur römischen Zeit war die Palastaula von prächtigen Anlagen umgeben. Östlich und westlich schlossen sich von Säulenhallen gesäumte Höfe an und statt der heutigen Eingangstür zur evangelischen Kirche war damals eine 17m lange Eingangshalle der Südseite eindrucksvoll vorgelagert. An den Seiten der Palastaula liefen auf Höhe der Fensterbänke beider Geschosse  Galerien rund um den Bau. Ihre riesigen Wandflächen - ursprünglich außen grau-weiß verputzt - waren von je 9 Fenstern und hochstrebenden Arkaden geschmückt.

Das breite Mauerwerk wurde in seinem Kern durchgehend aus Ziegeln gemauert und nicht nur verblendet. 

(Abb.4) Modell der römischen Anlage - Nordseite
(Abb.5) Modell der römischen Anlage - Südseite (Eingangsbereich)

Natürlich wurde auch in des römischen Kaisers weit ausgedehntem Vorzeigeraum mit beheizten Wänden und Fußböden für angenehme Temperaturen gesorgt. Das Innere der Halle war ausgesprochen prunkvoll ausgestattet.

Ein kostbarer Marmorfußboden mit schwarzweißem Muster zierte auf ganzer Fläche den Boden des riesigen Raumes. Selbst die Wände wurden bis auf die Höhe der Fenstersimse mit einer kostbaren glänzenden Marmortäfelung verziert. Von dort aufwärts schmückten aufwendige Malereien und feinster Stuck die Wand bis hoch zur freihängenden Kassettendecke. In den mit Goldmosaiken geschmückten Nischen standen einst große Marmorfiguren. Und der kaiserliche Thron, stand erhoben in der besonders großzügig und prachtvoll ausgestatteten Apsis. Der von Süden her durch die Vorhalle eintretende Besucher musste stolze 84m durchschreiten, um in die weiträumige Apsis zu gelangen, in der der Kaiser, umgeben von den höchsten Würdenträgern des Reiches thronte.

Der Baubeginn der als Repräsentationsbau geplanten Anlage lag ungefähr im Jahr 308 und wurde wahrscheinlich unter Kaiser Konstantin begonnen. Angeblich ließ Konstantin extra 1.500.000 Flachziegel aus den Pyrenäen und Nordafrika für den Bau nach Trier schaffen. Die rötlich schimmernde Palastaula Konstantins diente den römischen Kaisern fast 100 Jahre als Thronsaal, Kulisse für Audienzen, Empfänge und der üblichen Hofzeremonielle.

(Abb.6) Grundriss inkl der römischen Anbauten

Ab 392 wurde es den Kaisern zu unsicher in ihrer frontnahen Stadt Augusta Treverorum. Von all den germanischen Stämmen der Alemannen, Sueben und Vandalen bedroht verlegte der römische Kaiser seine Residenz von Trier nach Mailand. Und mit Abzug der  römischen Verwaltung verlor nebst Stadt auch das Gebäude zunehmend an Bedeutung. Die Zeit der Auflösung des römischen Reiches begann und mit dem Zerfall erlangten die fränkischen Könige das Sagen über unsere Stadt. Die ehemalige kaiserliche Audienzhalle - schon stark beschädigt und ohne Dach - kam ebenfalls in den Besitz merowingisch-fränkischer Könige, die sie nun Palatium nannten.

Mittelalter

Die Franken bauten die dachlose und ausgebrannte Ruine zu einer festungsartigen Palastanlage um und aus den Nebengebäuden wurde der Sitz des ansässigen fränkischen Gaugrafen. Das Hauptgebäude diente allerdings nur als festungsartiger Zufluchtsort bei Gefahr, denn es schien für damalige Verhältnisse schier uneinnehmbar. Der nicht mehr überdachte Bau wurde im Inneren durch kleinere Gebäude und einen Hofraum unterteilt.

Dieser Zustand hielt noch einige Jahrzehnte an bis das Grafenamt verfiel und die bischöfliche Landesherrlichkeit emporstieg.

Etwa ab dem Jahre 1000 war es so weit, der Trierer Bischof beanspruchte den ehemaligen Palastbereich für die Kirche und nahm das Gebäude in Besitz. Von nun an nutzen die Trierer Erzbischöfe und späteren Kurfürsten die ehemalige Palastaula für sich als Burg. Sie bauten sie zu einer mächtigen Festung mit Zinnen und einem Bergfried um und verlegten schon kurze Zeit später ihren Bischofssitz in den ehemaligen Palastbereich. Ab dem 13. Jahrhundert residieren die Trierer Erzbischöfe nun für einige Jahrhunderte im Bering der Basilika.

(Abb.7) Stich, 1648 - Ansicht 1550 mit Zinnen

Neuzeit

Zur Zeit der Renaissance, der Kulturepoche in der Zeit des Umbruchs vom Mittelalter zur Neuzeit, sollte auch in Trier für die erzbischöflichen Kurfürsten ein Schloss im Stil der Spätrenaissance erbaut werden. Ab dem Jahr 1615 kam es dann unter Kurfürst und Erzbischof  Lothar von Metternich zu den größten Umbauarbeiten die der ehemalige Kaisersitz über sich ergehen lassen musste.

(Abb.8) Kurfürst Lothar von Metternich

Ursprünglich plante man das komplette Bauwerk samt Nebengebäuden abzureißen um dort an freier Stelle den neuen Palast zu errichten. Alleine wegen der hohen Festigkeit des römischen Mauerwerks und den damit verbundenen hohen Kosten und zeitlichen Aufwands wurde davon abgesehen.

Der angesehene Kurfürst Lothar von Metternich begann gegen 1615 mit den Abrissarbeiten aller Nebengebäuden.  Dann trug er große Teile der Südwand und fast die komplette Ostwand ab. Von dem einst erhabenen Bauwerk blieben nur noch die dachlose Westwand (Sichtseite), kleine Teile der Südwand (Eingang) und die Nordwand mit ihrer Apsis erhalten.  (Abb. 1+2)

(Abb.9) Kurfüstliches Palais
(Abb.10) - Grundriss des Palais mit umgebauter Basilika

Während den Wirren des 30-jährigen Krieges wurden die Bauarbeiten häufiger unterbrochen, aber nach kurzer Zeit die noch stehenden Reste der Basilika als viergeschossiger schmalen Wohnflügel in den Bau des neuen vierflügeligen Kurfürstlichen Palais integriert.  Die Fertigstellung erfolgte im Jahr 1647 unter Kurfürst von Sötern. So wurde aus der Westwand des ehemaligen Thronsaals die West-Außenmauer des Kurfürstlichen Schlosses und der ehemalige Palastinnenraum zu einem Teil des Schlosshofes.

Von Kaserne zur evangelischen Kirche

Im Jahr 1789 brach in Frankreich die Revolution aus.  Die revolutionierenden französischen Truppen nahmen grenznahe Trier 1794 ein und brachten das Ende des Trierer Kurstaates. Nach Aufhebung des Kurfürstentums und der Verstaatlichung der kirchlichen Güter wurde der Palast zunächst als Lazarett und später als Kaserne genutzt.

Nachdem die Preußen ab 1814 die Franzosen wieder vertrieben hatten und Trier der Rheinprovinz zuordneten, wurde die Palastaula zunächst als preußische Kaserne weitergeführt.

Ab 1846 ließ König Friedrich Wilhelm IV von Preußen sämtlich kurfürstliche Ein- und Anbauten des 17. Jahrhunderts wieder entfernen und auf den noch vorhanden römischen Fundamenten die Ost- und Südwand neu errichten. Dafür musste das kurfürstliche Schloss seinen linken Flügel opfern. 1856 wurden die Bauarbeiten abgeschlossen und das Baudenkmal feierlich der evangelischen Kirchengemeinde Triers als Gotteshaus überlassen. Im selben Jahr folgte die Einweihung der Konstantinbasilika zur evangelischen Kirche des Erlösers.

(Abb.11) Innenansicht nach Umbau im Jahr 1856
(Abb.12) Einweihung Basilika mit König Friedrich Wilhelm IV
(Abb.13) Basilika 1890 (© Stadtarchiv Trier)

Als solche wurde sie bis zum nächsten Krieg 1871 (Deutsch-Französischer Krieg) genutzt, dann aber als preußische „Palastkaserne“ des 7. Rheinische-Infanterie-Regiment umfunktioniert.

Dem Deutsch-Französischer Krieg folgte 1914 der 1. Weltkrieg. Nachdem dieser für Deutschland verloren war wurde Trier erneut von den Franzosen besetzt. Mit Abzug der französischen Besatzung im Jahr 1930 ging die militärische Nutzung des Palastes zu Ende. Nun sollte das riesige Gebäude zum Rheinischen Landesmuseum umgebaut werden und bis 1939 liefen bereits die Arbeiten. Der folgende 2. Weltkrieg verhinderte die Fertigstellung und Nutzung als Museum. 1944 erreichte ein Flieger-Großangriff unsere Stadt Trier.

Alleine auf die neu gestaltete Basilika und das kurfürstliche Schloss wurden über 100 Brandbomben abgeworfen, doch gelang es ihnen nicht diesen mächtigen Bau zu zerstören. Aber er brannte völlig aus und wurde auch sonst stark beschädigt, Gottesdienste konnte man vorerst nicht mehr abhalten.

(Abb.14) Palastkaserne 1907 (© Stadtarchiv Trier)
(Abb.15) Bombenabwurf über Trier (Pfalzel)
(Abb.16) Basilika Innere Apsis (© Stadtarchiv Trier)
(Abb.17) ausgebrannte Basilika ohne Dach (© Stadtarchiv Trier)
(Abb.18) ausgebrannte Basilika ohne Dach (© Stadtarchiv Trier)
(Abb.19) (© Stadtarchiv Trier)

Nach Kriegsende, in den 1950er Jahre begann der Wiederaufbau der evangelischen Kirche, und 1956 erfolgte schon die erneute Einweihung.  Die Konstantinbasilika ist nun das älteste als Kirche genutztes Gebäude Deutschlands.

Mit der Trierer Konstantinbasilika stiftete Konstantin den Prototyp der romanischen Kirche. Alle Folgenden wurden aus dem Vorbild der Trierer Konstantinbasilika erbaut. Die lebensgroße Statur des Kaisers wurde durch das Kreuz Christi ersetzt und wo einst der Kaiser thronte wurde der Altar aufgestellt. 

(Abb.20)
(Abb.21) Konstantinbasilika Neu Innen

Was heute noch römisch zu sehen ist:

- Die Apsis, Teile der Südwand und die Westwand (heutige Sichtseite) mit den rötlichen Ziegel, die aber zur römischen Zeit verputzt waren

- Originale römische Außenmalerreien an 9 der 14 Fensterachsen der unteren Rundbogenreihe auf der West- und an der Nordseite erhalten.

- eine etwa 60m² große Putzfläche an der Nordfassade mit vereinzelten Farbresten 

(Abb.22) Römische Putzreste
(Abb.23) Westwand mit römischen Putzresten

Quellenangabe:

Abb.1,22,23:  eigene Fotoaufnahmen, 2019

Abb.2:  eigene Zeichnung (Quellen: Gymnasial-Bibliothek - Herausg. Prof. Hugo Hoffmann, Erfurt - 53. Heft "Das römische Trier" von Dr. Franz Cramer, Gütersloh 1911 + Führer zu vor- und frühgeschichtlichen Denkmälern TRIER Teil-1 Text, S. 150+151 - Römisch-Germanisches Museum Mainz, 1977 Verlage Philipp von Zabern, Mainz

Abb.3:  eigene grafische Überarbeitung - Quelle: Führer zu vor- und frühgeschichtlichen Denkmälern TRIER Teil-1 Text, S. 147 - Römisch-Germanisches Museum Mainz, 1977 Verlag Philipp von Zabern, Mainz

Abb.4,5: Quelle: Führer zu vor- und frühgeschichtlichen Denkmälern TRIER Teil-1 Text, S. 142 - Römisch-Germanisches Museum Mainz, 1977 Verlage Philipp von Zabern, Mainz

Abb.6:  eigene grafische Überarbeitung - Quelle/Ursprung: Führer zu vor- und frühgeschichtlichen Denkmälern TRIER Teil-1 Text, S. 145 - Römisch-Germanisches Museum Mainz, 1977 Verlag Philipp von Zabern, Mainz  +  TRIER, Kaiserresidenz und Bischofssitz, Verlag Philipp von Zabern, Rheinisches Landesmuseum Trier, 1984

Abb.7:  gemeinfreie* Bilddatei - Wikimedia Commons - https://commons.wikimedia.org/wiki/File:Trier_Konstantinsbasilika_Merian_1646(1548).jpg?uselang=de

Abb.8: gemeinfreie* Bilddatei - Wikimedia Commons - https://commons.wikimedia.org/wiki/File:Lothar_von_Metternich.jpg?uselang=de

Abb.9:  gemeinfreie* Bilddatei - Wikimedia Commons - https://commons.wikimedia.org/wiki/File:BasilikaAlsSchloss.jpg?uselang=de

Abb.10:  eigene grafische Überarbeitung - Quelle/Ursprung: Führer zu vor- und frühgeschichtlichen Denkmälern TRIER Teil-1 Text, S. 157 - Römisch-Germanisches Museum Mainz, 1977 Verlag Philipp von Zabern, Mainz

Abb.11:  gemeinfreie Bilddatei - Wikimedia Commons - https://commons.wikimedia.org/wiki/File:Trier,_Rheinland-Pfalz_-_Basilika,_Altarraum_(Zeno_Ansichtskarten).jpg?uselang=de

Abb.12:  gemeinfreie* Bilddatei - Wikimedia Commons - https://de.wikipedia.org/wiki/Datei:Einweihung_Basilika_Trier_mit_K%C3%B6nig_Friedrich_Wilhelm_IV.jpg

Abb.13,16-19: © Stadtarchiv Trier

Abb.14:  gemeinfreie* Bilddatei - Wikimedia Commons - https://commons.wikimedia.org/wiki/File:Einweihung_Basilika_Trier_mit_K%C3%B6nig_Friedrich_Wilhelm_IV.jpg?uselang=de

Abb.15: gemeinfreie** Bilddatei - Wikimedia Commons - https://commons.wikimedia.org/wiki/File:Trier-Pfalzel_RR_bridge_B-26_attack2_1944.jpg?uselang=de

Abb.20:  eigene Nachzeichnung / Quelle/Ursprung: Führer zu vor- und frühgeschichtlichen Denkmälern TRIER Teil-1 Text, S. 145 - Römisch-Germanisches Museum Mainz, 1977 Verlag Philipp von Zabern, Mainz  +  TRIER, Kaiserresidenz und Bischofssitz, Verlag Philipp von Zabern, Rheinisches Landesmuseum Trier, 1984

Abb.21:  gemeinfreie* Bilddatei von B. Werner - Wikimedia Commons - https://commons.wikimedia.org/wiki/File:Trier_Konstantinbasilika_BW_4_zurechtgezurrt.jpg

 

* Dieses Bild ist gemeinfrei, denn
• das Werk wurde von seinem Rechteinhaber durch Verzicht auf das Urheberrecht als Public Domain nach amerikanischem Recht freigegeben, oder
• das Werk wurde unter einem solchen Nutzungsrecht zur Verfügung gestellt, dass es von jedermann frei benutzbar und veränderbar ist (§ 31 Abs. 1 UrhG), oder
• die Urheberrechtsschutzdauer ist abgelaufen, weil mindestens 70 Jahre - bei Fotos: 50 Jahre - seit dem Tod des Urhebers vergangen sind, oder
• eine Anwendung des Copyright kommt nicht in Frage, da eine bloße technische Reproduktion einer gemeinfreien Vorlage vorliegt oder das Werk über keine eigene Schöpfungshöhe verfügt

** Dieses Werk ist in den Vereinigten Staaten gemeinfrei, da es von Mitarbeitern der US-amerikanischen Bundesregierung oder einem ihrer Organe in Ausübung ihrer dienstlichen Pflichten erstellt wurde und deshalb nach Titel 17, Kapitel 1, Sektion 105 des US Code ein Werk der Regierung der Vereinigten Staaten von Amerika ist.

Weitere ausführliche Informationen gibt es in den Wikipedia-Artikeln Gemeinfreiheit und "Bildrechte".

Porta
Theater
K-Therme
B-Therme
R-Brücke
Kreuz
Dom
Liebfr.
Gangolf
Paulin
Maximin
Matthias
I-Säule